1491 W Lambert RoadLa Habra, CA 90631




Mortgage Calculator
Monthly Payment (Est.)
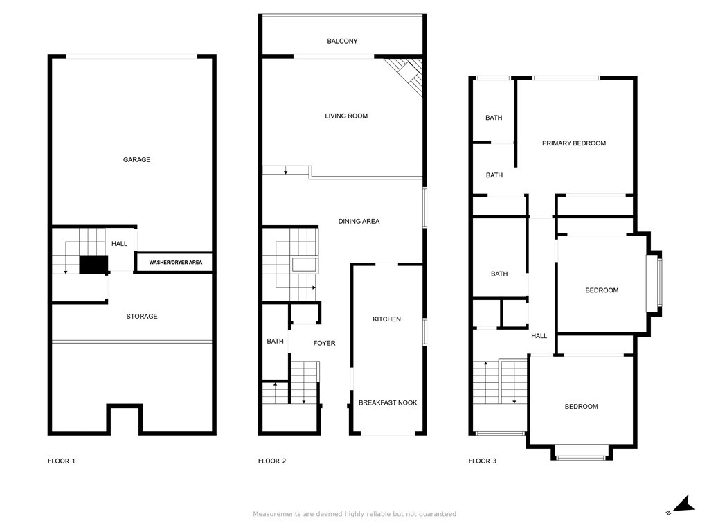
$2,966Best Buy in Orange County, an attached single-family 3-bedroom home at the lowest price per square foot you’ll find! Don’t miss your chance to own the largest end-unit in La Habra Woods! Welcome to 1491 W Lambert Road, La Habra—a spacious 3-bedroom, 3-bath home nestled in the desirable La Habra Woods gated community. The updated kitchen features granite countertops, a stone backsplash, abundant cabinets, and sleek black and stainless steel appliances. A dual black sink with a garden window adds charm, while the breakfast nook with balcony access is perfect for morning coffee. The step-down living room features charming wood-beam ceilings, a cozy fireplace with a hearth and mantel, and sliding doors that open to the private front patio. A formal dining area makes entertaining easy. Upstairs, the oversized primary suite offers vaulted ceilings, dual closets, and a private ensuite. Secondary bedrooms are generously sized, and the updated second bathroom includes a convenient step-in shower. Additional features throughout include recessed lighting, plantation shutters, ceiling fans, a water softener, mirrored closet doors, and recently replaced A/C ducts and registers for improved efficiency and comfort. The attached 2-car garage offers direct access, a laundry area, and ample unfinished storage space—ideal for a home office, gym, playroom, or hobby room. Outside, relax or entertain on your private front patio with peaceful greenbelt views. Tucked toward the back of the community for added privacy, this end-unit home is within walking distance to the sparkling pool and spa and gives you access to beautifully maintained grounds—all within a secure gated entry. Perfectly nestled in the neighborhood yet just minutes from shopping, dining, schools, parks, freeways, and The La Habra Marketplace with its endless grocery, café, and restaurant options. Priced to sell, it offers incredible space, the convenience of location, and is ready for you to make it your own! Call today for your private showing.
| yesterday | Status changed to Pending | |
| yesterday | Listing updated with changes from the MLS® | |
| 2 months ago | Price changed to $649,999 | |
| 4 months ago | Listing first seen on site |
This information is for your personal, non-commercial use and may not be used for any purpose other than to identify prospective properties you may be interested in purchasing. The display of MLS data is usually deemed reliable but is NOT guaranteed accurate by the MLS. Buyers are responsible for verifying the accuracy of all information and should investigate the data themselves or retain appropriate professionals. Information from sources other than the Listing Agent may have been included in the MLS data. Unless otherwise specified in writing, the Broker/Agent has not and will not verify any information obtained from other sources. The Broker/Agent providing the information contained herein may or may not have been the Listing and/or Selling Agent.


Did you know? You can invite friends and family to your search. They can join your search, rate and discuss listings with you.